Arquitectura
Entendemos la arquitectura como un proceso integral que comienza desde la concepción de la idea hasta la realización final de la obra. Por eso, acompañamos a nuestros clientes en diversas etapas, que incluyen:
- Anteproyecto
- Proyecto nuevo
- Reforma o reacondicionamiento
- Elaboración de carpeta para presentación y venta
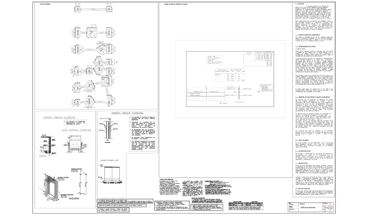
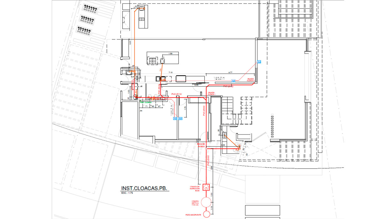
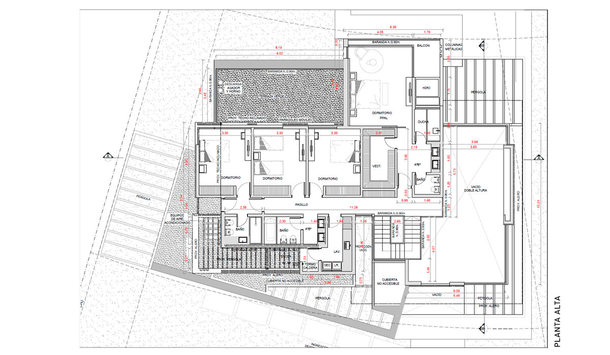
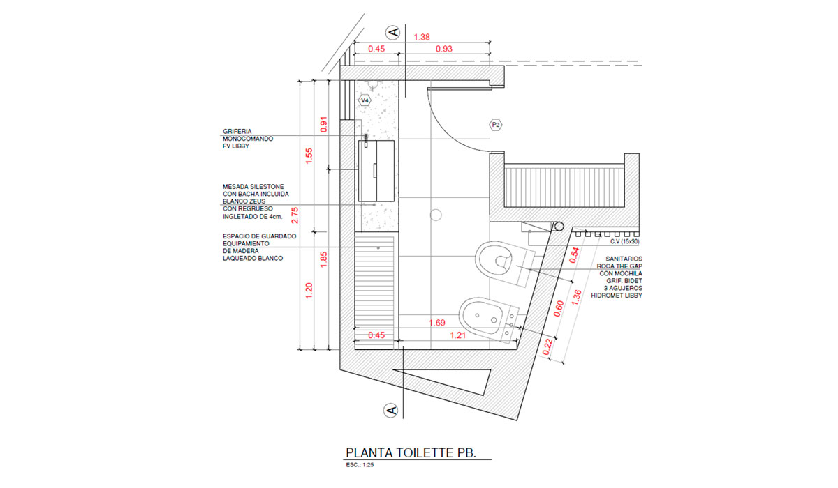
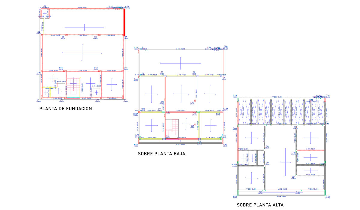
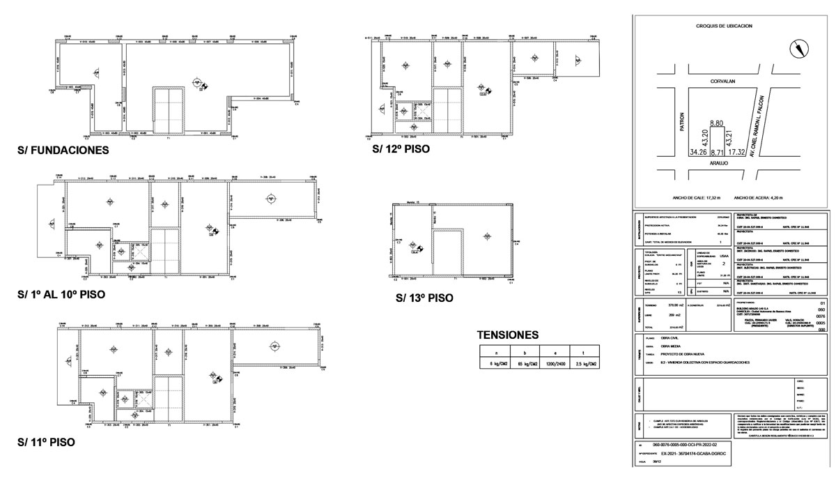
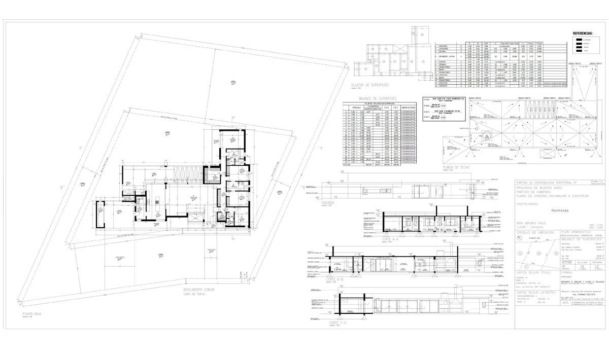
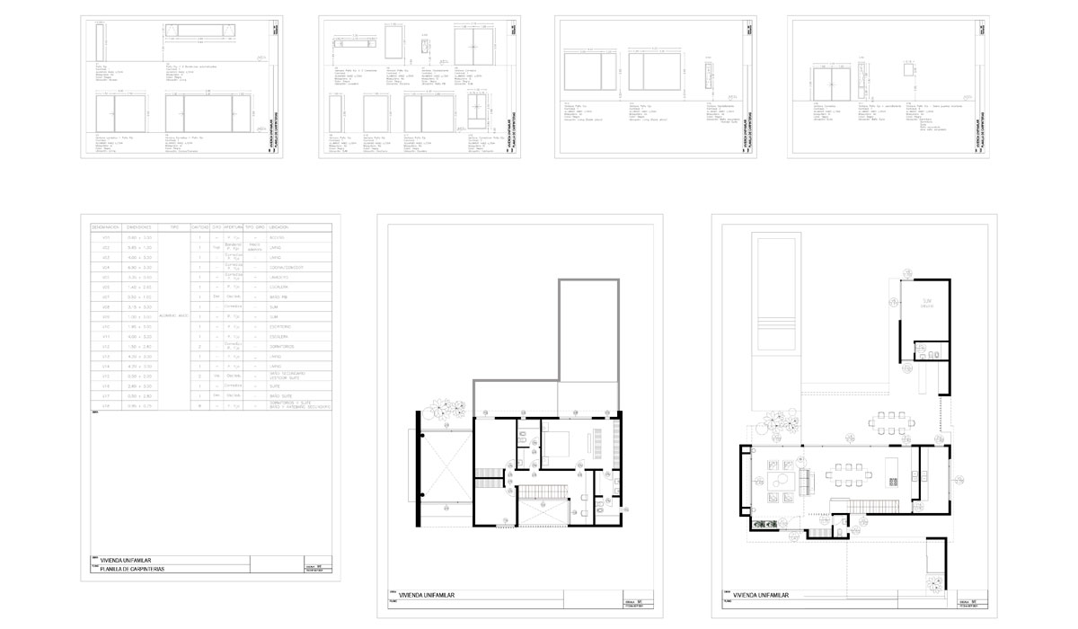
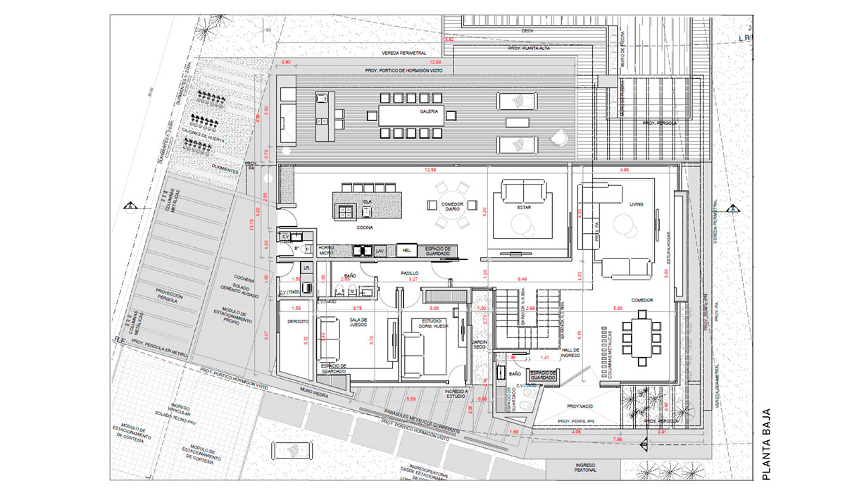
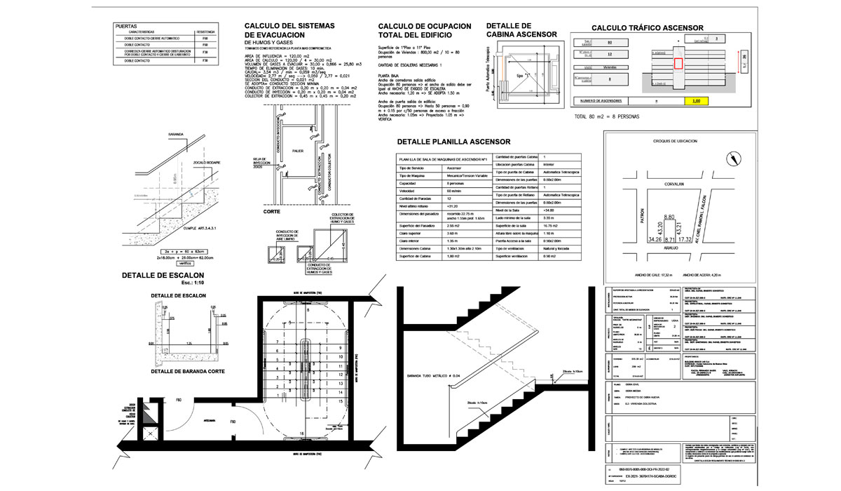
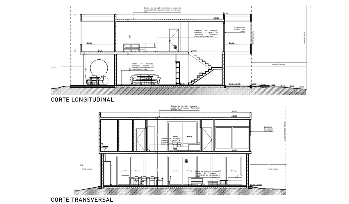
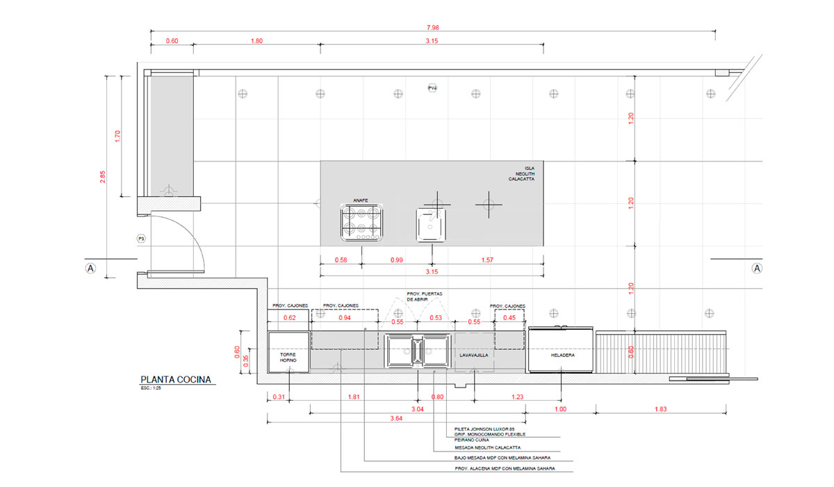
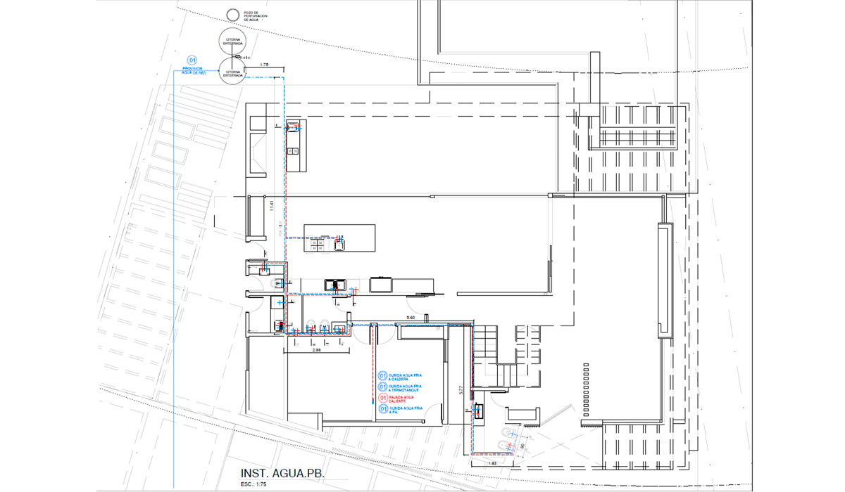
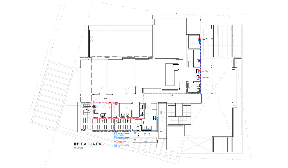
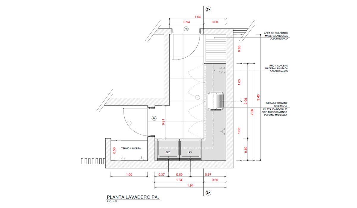
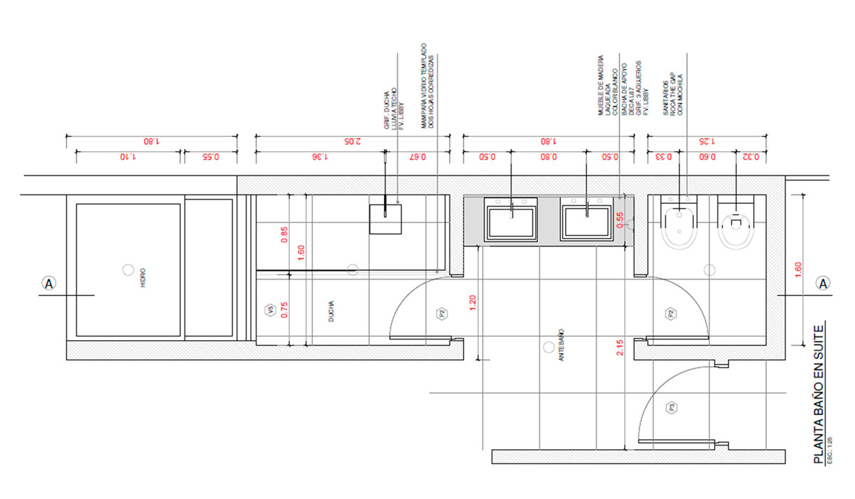
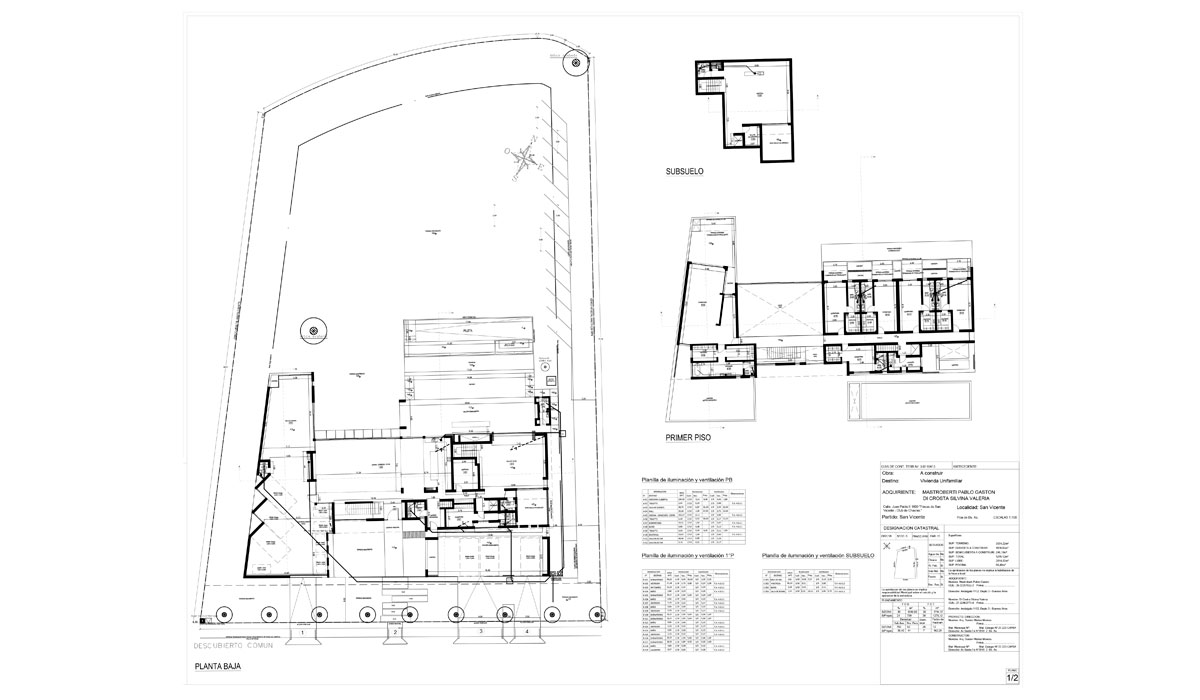
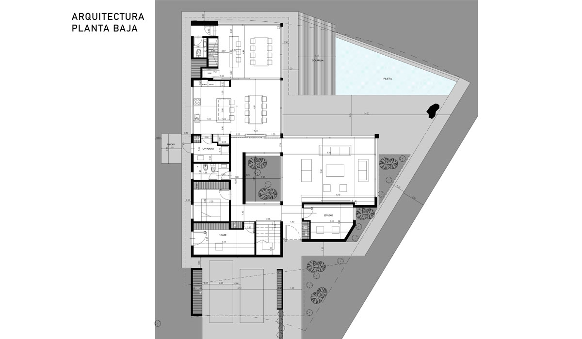
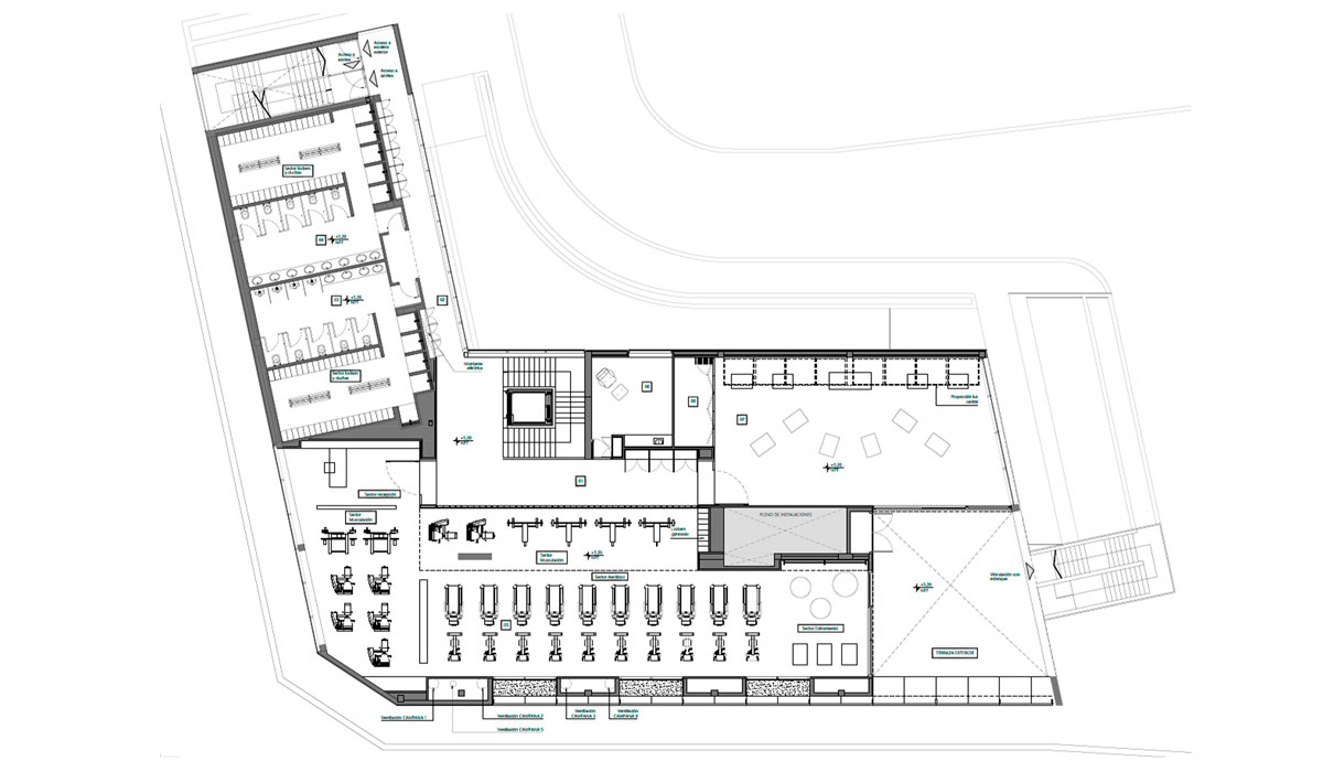
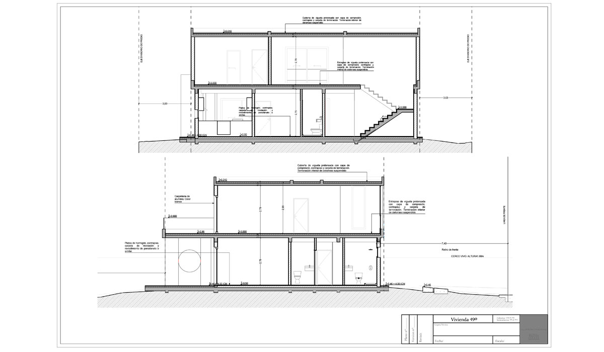
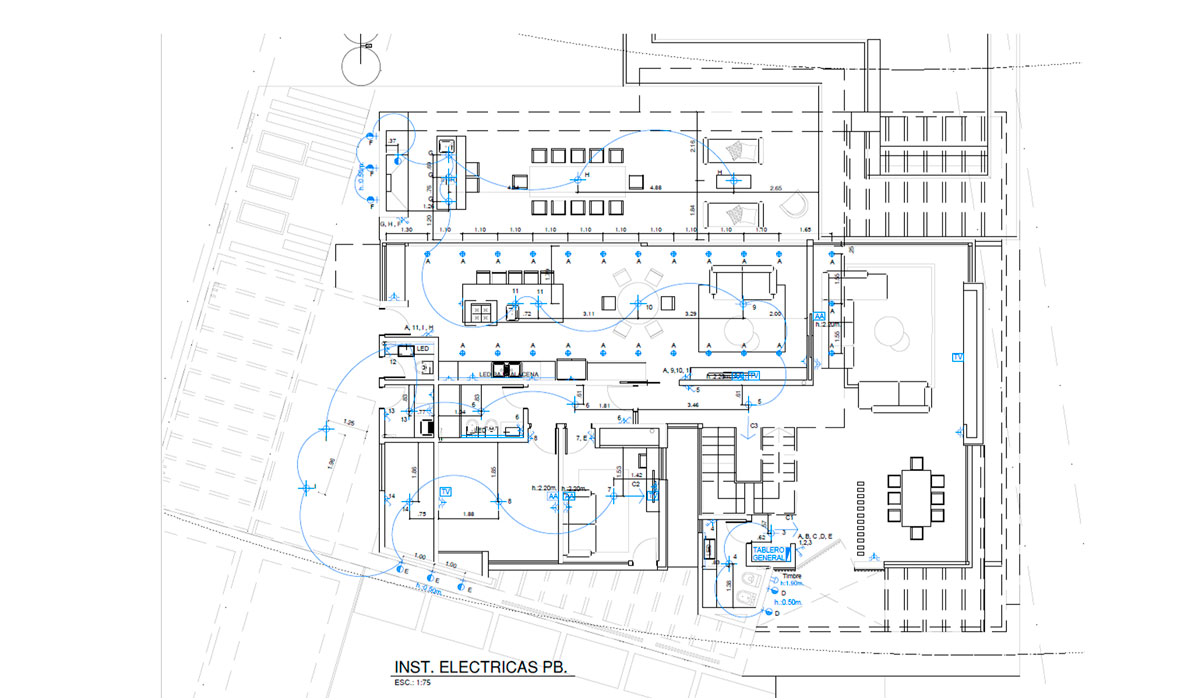
- Planos de Arquitectura, Ingeniería e Instalaciones
- Esquema estructural
- Planos de replanteo
- Planos de obra
- Planillas
- Detalles estructurales
- Detalles constructivos
- Maqueta virtual 3D de arquitectura
- Maqueta virtual 3D de estructura
- Renders fotorrealistas
- Renders esquemáticos
- Cómputo y presupuesto
- Memoria de cálculo
- Dirección de obra
En nuestro estudio de ingeniería y arquitectura, nos comprometemos a proporcionar soluciones completas y personalizadas en cada proyecto, desde su concepción hasta la ejecución final.
