Estructuras Combinadas
En nuestro estudio de ingeniería y arquitectura, nos destacamos en la realización de obras que combinan estructuras metálicas con elementos de hormigón armado. Esta especialización nos permite integrar lo mejor de ambos materiales para lograr proyectos innovadores y sólidos.
Nuestros Servicios:
- Diseño integrado de estructuras combinadas, aprovechando las ventajas de la resistencia del acero y la versatilidad del hormigón.
- Análisis estructural detallado para garantizar la compatibilidad y eficiencia de la combinación de materiales.
- Elaboración de planos precisos que reflejen la integración armónica de las estructuras metálicas y de hormigón.
- Modelado 3D para visualización y estudio avanzado de la interacción entre los componentes.
- Asesoramiento en la selección óptima de materiales y técnicas constructivas.
- Dirección técnica durante todas las etapas del proyecto, desde la concepción hasta la ejecución.
- Cada proyecto de estructuras combinadas es abordado con un enfoque único y personalizado, asegurando la calidad y durabilidad del resultado final.
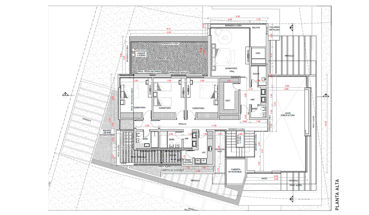
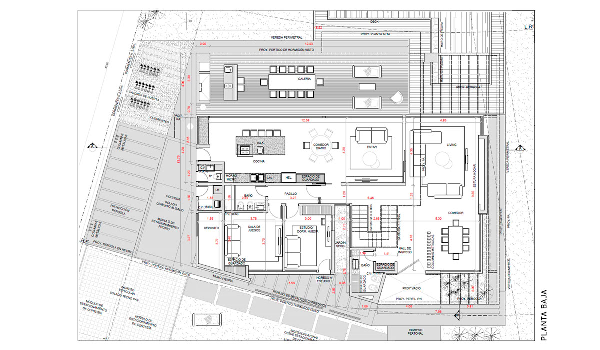
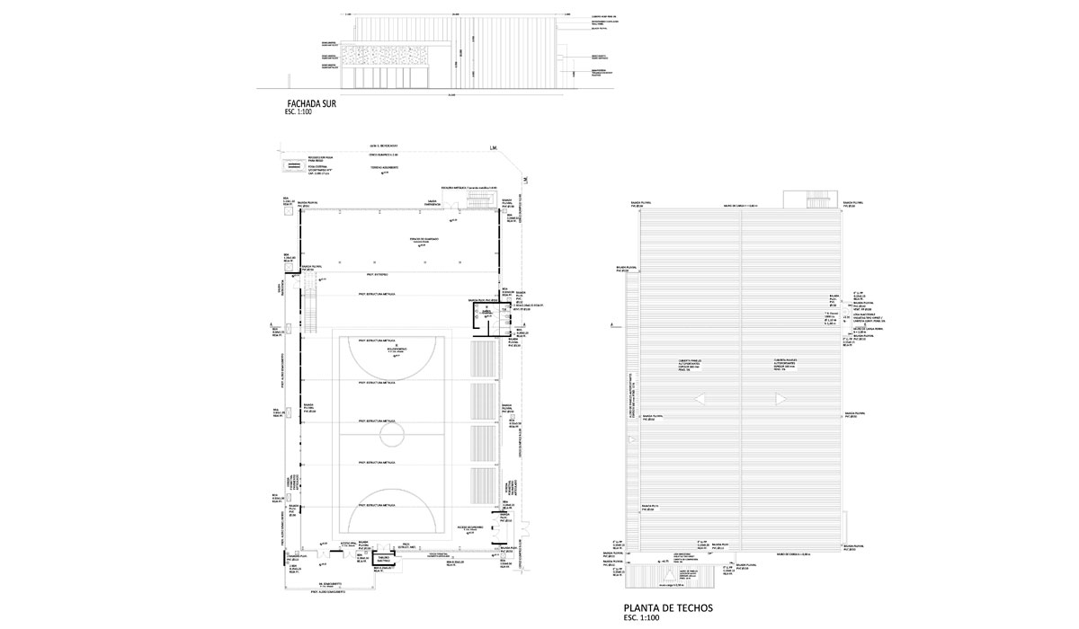
Galería de Proyectos:
A continuación, te invitamos a explorar nuestra galería de imágenes con algunos de los proyectos de estructuras combinadas (metálicas y de hormigón armado) que hemos realizado.
