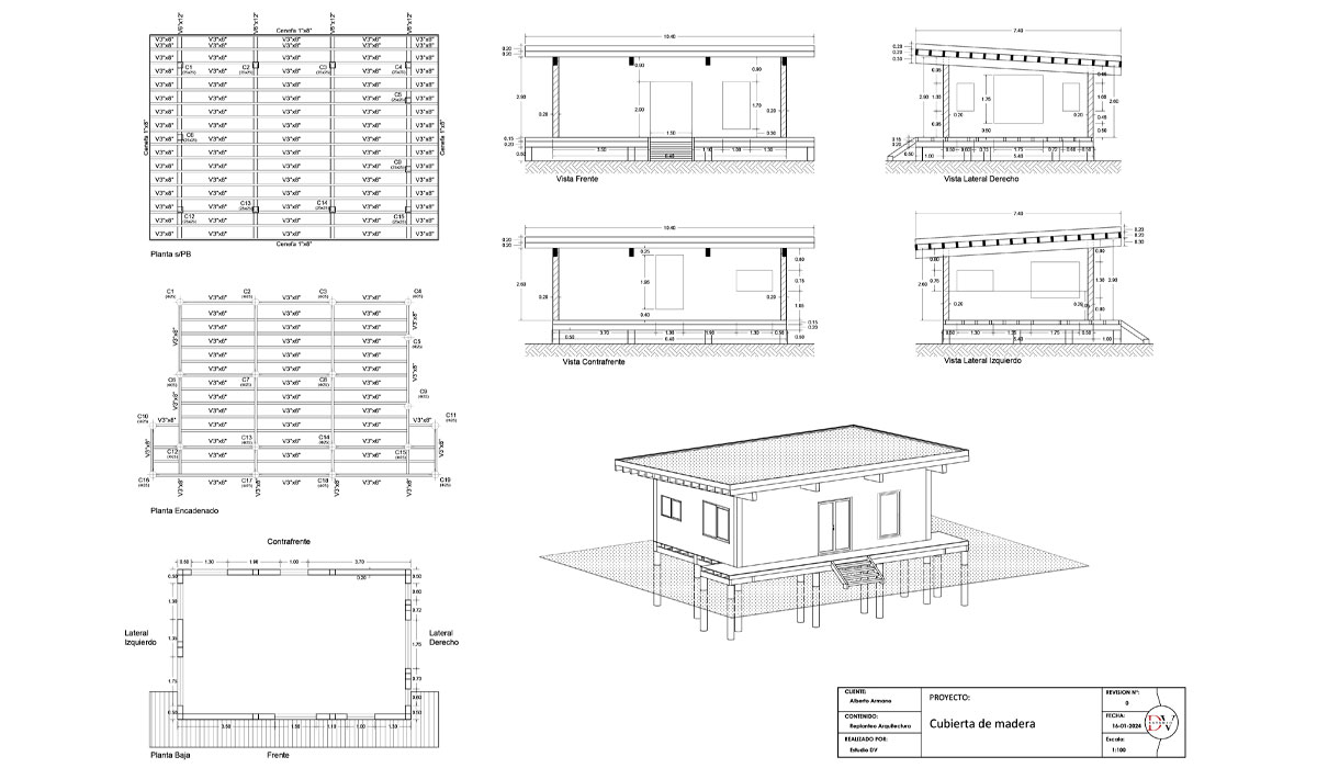
Madera

En nuestro estudio de ingeniería y arquitectura, nos especializamos en el diseño y fabricación de estructuras de madera para proyectos de construcción. 

Nuestras estructuras incorporan elementos clásicos de construcción como cerchas, postes y vigas entrelazadas para soportar cargas, configurar separaciones con tableros OSB y realizar montajes estructurales. 

La madera, con su comportamiento único frente a los esfuerzos de flexión, nos permite diseñar estructuras capaces de abarcar grandes distancias entre los apoyos con eficacia y resistencia excepcionales.